Extensions

With more than 20 years in practice, hughmorrisonarchitect has developed strong working relationships with local builders. This in turn has helped us create a detailed understanding of the process and costs of adding new space to your home - whether it is a contemporary, traditional or listed dwelling. We combine creativity, experience, and attention to detail, to ensure that your new space is realised sympathetically, on budget and on time.

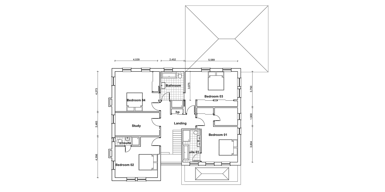
Dwellings

hughmorrisonarchitect offers each client a personal service. We ensure that by listening to your needs and aspirations, we can help you create your dream home.


We offer our clients:

  • site appraisal
  • planning approval procurement
  • guidance on energy optimisation
  • detailed design
  • competitive tendering
  • project management

3D Modelling

We use digital modelling as our primary design tool. Throughout the process, clients can navigate through our 3D fly-through models via their PC, tablet or smart phone. This allows you to follow and contribute to your scheme from start to finish.

If the site that you’re looking at for your new home appears problematic, our 3d modelling is a most effective tool in overcoming planning authority objections. Issues such as visual amenity, overlooking and density, as well as context and scale concerns, are often clarified by the presentation of a model.
Click here to find out more about models.